Cabana para deseñador, por Patricia Eiras


 

Cabana para deseñador, é proxecto que se desenvolveu no 1º trimestre do primeiro ano do Ciclo Formativo de Grao Superior de Proxectos e Dirección de Obra de Decoración que se imparte en AulaD , un traballo no que se parte dun paralelepípedo situado no monte da Guía de Vigo e de dimensións 3,00 x 5,00 x 4,25 m (la x lo x h). O proceso de deseño tiña que abordar as cuestións conceptuais, programáticas, organizativas e funcionais implícitas neste proxecto, sempre dende unha perspectiva global e non como unha mera suma de obxectos dentro do espazo.

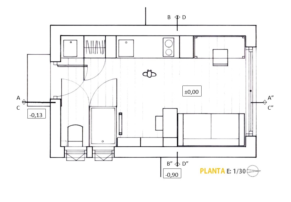
::: DEMANDA :::

O encargo consiste na realización dunha cabana que cubra as necesidades mínimas dun deseñador (gráfico ou de interiores). Pártese dun parelelepípedo coas dimensións antes especificadas ás que haberá que sumarlle un espesor de 30 cm. Permitirase a apertura de tódolos ocos que se consideren necesarios para o bo desenvolvemento do proxecto. Así mesmo, poderá proxectarse unha entreplanta que ocupará un máximo dun 30% da superficie en planta.

::: PROPOSTA :::

O obxetivo que se pretende é conseguir unha continuidade de todo o espazo, así como agrandalo visualmente. Para iso, evítanse os tabiques utilizando no seu lugar o vidro. Tamén predominan as liñas rectas e a verticalidade e óptase por acabados brillo «espello», así como a colocación de espellos en certos puntos.

Mestúranse mobles actuais e lixeiros coa robustez do formigón visto, pretendendo unha estética urbana e industrial. As cores dominantes son o gris e o branco, achegando luz co verde e o turquesa. Porporciónase calidez a través do mobiliario de taboleiro en DM, a tarima de carballo e o revestimiento de madeira cor prata.

A principal fonte de luz natural é o amplo ventanal que deixa gozar das vistas á ría de Vigo.

Deja una respuesta

Tu dirección de correo electrónico no será publicada. Los campos obligatorios están marcados con *

Este sitio usa Akismet para reducir el spam. Aprende cómo se procesan los datos de tus comentarios.

Volver arriba