Vivenda compartida, é un proxecto que se desenvolveu no 2º trimestre do primeiro ano do Ciclo Formativo de Grao Superior de Proxectos e Dirección de Obra de Decoración que se imparte en AulaD , un traballo no que se propoñía definir a organización espacial e os aspectos estéticos dun espazo dado.
::: DEMANDA :::
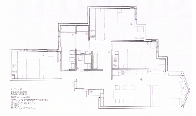
O encargo consiste na realización dunha vivienda compartida para tres persoas (ou tres parellas) que conte con zonas privadas así como doutras de uso compartido entre os usuarios da vivenda. Preténdese meditar sobre un tema, a vivenda, que ao longo das últimas décadas sufriu unha evolución que continúa nos nosos días, que van dende a relación existente entre vivenda e xustiza social ata cambios sociais que modificaron os usos da vivenda (aumento de lonxevidade, de familias monoparentais, incorporación da muller ao mundo laboral, introdución masiva de electrodomésticos, etc).
::: PROPOSTA :::
Esta é una vivenda para compartir e a proposta que se considera propón dotar a vivenda dun espazo social amplo no que se poidan desenvolver diferentes accións con simultaneidade. A organización da distribución favorece esta posibilidade.
Para isto créase unha conexión entre as zonas comúns sen barreiras entre elas, pero marcando a función de cada espazo. Un exemplo representativo que deixa clara esta intención, é a zona de lavabo aberto ó distribuidor, cambiando totalmente o carácter reservado e individual que habitualmente se lle atribúe a este.
Así, o único ámbito concibido como privado da vivenda son os dormitorios e os aseos, nos que a distribución e as dimensións están deseñadas tendo en conta que os usuarios teñen dispoñible unha grande cantidade de espazo nas zonas comúns.

